+420 721 626 198

info@thermowooddomy.cz

Piletická 486, Věkoše, 503 41 Hradec Králové

+420 721 626 198

info@thermowooddomy.cz

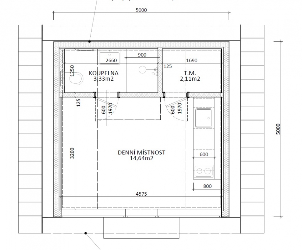
chata Aavo Delux 25

Nízkoenergetická chata Aavo Delux je vyrobená z našeho panelového systému Thermowood. Zastavěná plocha je 25 m2, což umožňuje výstavbu bez stavebního povolení.
V přízemí se nachází jedna obytná místnost s kuchyní o výměře necelých 15 m2. V zasní části chaty je koupelna s WC a technická místnost. Po schodišti se dostaneme do podkrovního prostoru, který je možné využít k přespání 4 lidí.
Lze také postavit i v zrcadlovém provedení. Objekt vám samozřejmě velice rádi smontujeme, pokud jste kutil, či dodavatelská firma, máme pro vás podrobný manuál ke stavbě. Cena je za kompletní stavebnici srubu, dle specifikace.

Specifikace produktu
Půdorys chaty: 500 x 500 cm
Výška bočnice: 90 cm
Výška hřebene: 499 cm
Plocha střechy: cca 80 m2
Materiál stavby : Panelový systém Thermowood

Cena stavebnice včetně DPH : 719 000,-Kč

Doprava na místo stavby ZDARMA.

SPECIFIKACE CHATY

Vnější stěna – výška 0,9 m
Z venku dovnitř:
-21x145mm obklad palubka (1x natřeno základním nátěrem a 1x nabarveno)
 -28x45mm trámky C24 600mm
 – 9mm sádrokarton chráněný proti větru
– hlavní dřevěný rám 45 x 145 mm C24 600 mm
– 150 mm minerální vlna 036
– 0,2 parozábrana
– dřevěný rám 45 x 45 C24, 600 mm

Podlahové prvky – za příplatek
Z venku dovnitř:
–        PLP desky 22 mm
–        hlavní podlahový dřevěný rám 45 x 245 mm C24, 600 mm
–        250 mm minerální vlna 036
–        ochrana proti větru Riwega DO-100
–        25 x 100 mm podlahové prkno
–        vrchní podlaha 8 mm

Nenosné interiérové stěny
–        12,5 mm sádrokartonová deska
–        hlavní dřevěný rám  45 x 95 mm C24, 600 mm
–        100 mm minerální vlna 037
Prvky jsou z jedné strany otevřené


Stropní prvky
–        PLP desky 22 mm
–        hlavní dřevěný rám 45 x 145 mm C24, 600 mm
–        150 mm minerální vlna 037
–        25 x 100 mm dřevěná deska

Střešní prveky
Z venku dovnitř:
–        dřevěný rám 45 x 45 mm C24, 600mm
–        parotěsná zábrana Riwega DO-100
–        22 x 100 mm dřevěná deska
–        hlavní dřevěný rám 45 x 245 mm C24, 600 mm
–        250 mm minerální vlna 035
–        0,2 mm parozábrana
–        45 x 45 mm dřevěný rám C24, 600 mm

Izolované štíty
–        21x145mm obklad palubka (1x natřeno základním nátěrem a 1x nabarveno)
–        28x45mm trámky C24 600mm
–        9mm sádrokarton chráněný proti větru
–        hlavní dřevěný rám 45 x 145 mm C24 600 mm
–        150 mm minerální vlna 036
–        0,2 parozábrana
–        dřevěný rám 45 x 45 C24, 600 mm

Materiál obsažený v balení
–        latě a trámky

Rychlý kontakt

    Telefon

    +420 721 626 198

    Email

    info@thermowooddomy.cz